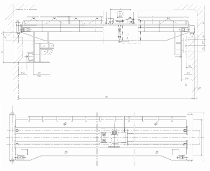
LH型电动葫芦桥式起重机

- 电动钢丝绳葫芦
- 标准配备变频器(起升、运行)通过缓慢启动、缓慢停止,减少冲击,动作平稳 采用拉力转子式(Pull-Rotot)制动器、电子热继电器,提高安全性能 采用轻载高速功能,提高作业效率:同时具有运行监视功能 节能环保-符合国家节能环保要求,整机能效等级高,属于节能产品。

- LX型电动悬挂单梁起重机
- LX型电动单梁悬挂起重机是一种悬挂在厂房梁下工字钢下翼缘运行的轻小型起重机,无须立柱支撑,节约了地面空间,使用方便灵活。适用于机械制造、注塑、模具加工等场所。
- 轮胎门式起重机
- 轮胎门式起重机,结构简单,维护方便,广泛适用于中、小型多用途堆场,有效提高起吊高度。适用于机械制造、注塑、模具加工、钢材、石材等场所。
LH型电动葫芦桥式起重机以葫芦作为起升机构,结构简单,安全性能好,维护方便,有效提高起吊高度。适用于机械制造、注塑、模具加工、钢材、石材等场所。
LH型电动葫芦梁式起重机是电动葫芦桥式起重机(简称"葫双"), 以电动葫芦作为起升机构,桥架采用半偏轨箱形梁,电缆导电,主梁与端梁用可拆式螺栓联接。"葫双"自重轻、体积小、结构简单、成组性好、经济实用。安装、使用、维修、运输方便。适用于轻、中级制度的机械车间、仓库、料场、水电站的检修、装配和装卸工作。"葫双"外形尺寸小,轮压较低,价格低廉,是一种新型的桥式起重机。
| LH型电动葫芦桥式起重机LH32/10t参数 | ||||||||||
| 额定起重量 | t | 32/10 | ||||||||
| 操纵形式 | min | 地面操纵:操纵室 | ||||||||
| 速度 | 主构起升 | 3(0.3/3) | ||||||||
| 副钩起升 | 7(0.7/7) | |||||||||
| 小车运行 | 20 | |||||||||
| 大车运行 | 地面 | 20;30 | ||||||||
| 操纵室 | 30;40 | |||||||||
| 电动机 | 主构起升 | 型号/kw | ZD*62-6/18.5,ZDS12.2/18.5(主机6级电机) | |||||||
| 副钩起升 | ZD151-4/13(ZDSI.5/13) | |||||||||
| 小车运行 | ZDY131S-4/2.2*2 | |||||||||
| 大车运行 | 地面 | ZDY131S-4/2.2*2 ZDY131-4/3*2 | ||||||||
| 操纵室 | ZDRII2L2-4/3.0*2 ZDRI25-4/4.6*2 | |||||||||
| 电动葫芦 | WHI64;CD1(MD1) | |||||||||
| 起升高度 | m | 9;12;16;24 | ||||||||
| 工作制度 | A3-A5 | |||||||||
| 电源 | 3-phaseA.C.三相交流;50HZ;380V | |||||||||
| 荐用大车道轨 | 43kg/m | |||||||||
| 跨度 | m | 7.5 | 10.5 | 13.5 | 16.5 | 19.5 | 22.5 | 25.5 | ||
| 起重机最大轮压 | KN | 167 | 184 | 196 | 206 | 215 | 224 | 233 | ||
| 自重 | 地面操纵 | kg | 12530 | 14660 | 16360 | 18870 | 21650 | 24260 | 27060 | |
| 操纵室 | kg | 13430 | 15530 | 17260 | 19770 | 22550 | 25160 | 27960 | ||
| 基本尺寸 | B | mm | 2600~4500 | |||||||
| W | mm | 2000-4000 | ||||||||
| We | mm | 2200-2900 | ||||||||
| K | mm | 1600-2500 | ||||||||
| H | mm | 1900 | ||||||||
| H1 | mm | 765 | ||||||||
| H2 | mm | 170 | 270 | 370 | 470 | 570 | 670 | 770 | ||
| H3 | mm | 2395 | 2495 | 2595 | 2695 | 2795 | 2895 | 2995 | ||
| H4 | mm | -700 | ||||||||
| b | mm | 230 | ||||||||
| S1 | mm | 1100 | ||||||||
| S2 | mm | 1600 | ||||||||









广东昱嘉起重机械制造工业有限公司
400电话:400-1133-186
座机:0752-2260708
手机:13802872058(联系人:薛来华)
客服QQ1:2819465605
客服QQ2:2032136211
客服QQ3:2982535782
传真:0752-3199309
邮箱:dsb@yjqzj.com.cn
公司地址:广东省惠州市博罗县泰美镇板桥工业区良田村金龙路东边
| * 联系人: | 请填写您的真实姓名 |
| * 手机号码: | 请填写您的联系电话 |
| 电子邮件: | |
| * 采购意向描述: | |
| 请填写采购的产品数量和产品描述,方便我们进行统一备货。 | |
| 验证码: |
|

- 电动钢丝绳葫芦
- 标准配备变频器(起升、运行)通过缓慢启动、缓慢停止,减少冲击,动作平稳 采用拉力转子式(Pull-Rotot)制动器、电子热继电器,提高安全性能 采用轻载高速功能,提高作业效率:同时具有运行监视功能 节能环保-符合国家节能环保要求,整机能效等级高,属于节能产品。

- LX型电动悬挂单梁起重机
- LX型电动单梁悬挂起重机是一种悬挂在厂房梁下工字钢下翼缘运行的轻小型起重机,无须立柱支撑,节约了地面空间,使用方便灵活。适用于机械制造、注塑、模具加工等场所。
- 轮胎门式起重机
- 轮胎门式起重机,结构简单,维护方便,广泛适用于中、小型多用途堆场,有效提高起吊高度。适用于机械制造、注塑、模具加工、钢材、石材等场所。
相关资讯
| 我要评论: | |
| 内 容: |
(内容最多500个汉字,1000个字符) |
| 验证码: | 看不清?! |
昱嘉起重机产品分类
桥门式起重机
座机:0752-2260708
传真:0752-3199309
地址:广东省惠州市博罗县泰美镇板桥工业区良田村金龙路东边







共有-条评论【我要评论】